Makléř: Bc. Kozák Tomáš
Telefon: 296 399 ...
E-mail: info@mm ...
Zobrazit celý kontaktTelefon: 296 399 006
E-mail: info@mmreality.cz
Nemovitost nabízí
M&M reality holding a.s.
Krakovská 1675/2, 110 00 Praha 1
Zobrazit kontakt na RK800 100 446
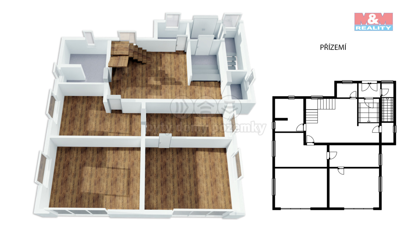
Nabízíme k prodeji prostornou rodinnou vilu v malebné jihočeské obci Dobšice u Týna nad Vltavou s pozemkem o celkové výměře 1000 m2. Dům je ideální i pro dvougenerační bydlení. Nemovitost je ve fázi rekonstrukce. Vila disponuje dvěma nadzemními podlažími a jedním podzemním podlažím. 1. NP má dispozici 3+1 o ploše 81 m2 s prostornou halou, koupelnou, WC a úložnými prostory. Součástí je i prostorná terasa (20 m2). V 2. NP 3+1 (92 m2), koupelna, WC a dva balkóny (15 m2). Dům je kvalitně zateplen včetně střechy, což zajišťuje nízké energetické náklady (třída B). V obytných částech domu rozvod podlahového vytápění, do budoucna s napojením na tepelné čerpadlo. K dispozici je sklep a garáž o celkové ploše 95 m2, parkovací stání pro tři auta. Nemovitost má vlastní studnu a je napojena na veřejnou kanalizaci a vodovod. K nemovitosti lze přikoupit vedlejší pozemek o výměře cca 700 m2, který lze využít jako další stavební parcelu. Veškerá občanská vybavenost v 5 km vzdáleném Týně nad Vltavou.

Novostavba rodinného domu Dobšice u Týna nad Vltavou
Novostavba rodinného domu ve variantě Shell & Core. Ideální řešení pro ty, kteří se nechtějí smiřovat s vybavením, které si sami nevybrali. Líbí se…