Makléř: Líkař Martin
Telefon: 800 100 ...
E-mail: info@mm ...
Zobrazit celý kontaktTelefon: 800 100 446
E-mail: info@mmreality.cz
Nemovitost nabízí
M&M reality holding a.s.
Krakovská 1675/2, 110 00 Praha 1
Zobrazit kontakt na RK800 100 446
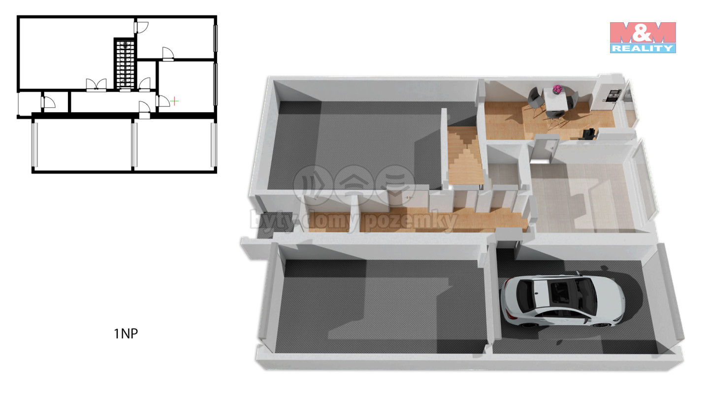
Nabízíme k prodeji prostorný rodinný dům o dispozici 6+1 a celkové ploše 396 m2 v původním, udržovaném stavu. Nemovitost se nachází v klidné a žádané lokalitě Soběslavi, ul. U Nového rybníka. Popis nemovitosti: • Obytná část: 6+1 s dostatkem prostoru pro rodinu nebo vícegenerační bydlení. • Technická část: garáž, dílna, kotelna a prádelna. • Inženýrské sítě: obecní vodovod, kanalizace, elektřina a plyn - vše kompletně dostupné. • Střecha: nová, což přináší úsporu při budoucí rekonstrukci. Klidné prostředí obklopené přírodou, ideální pro rodinný život. 10 minut pěšky do centra města, 2 minuty jízdy na dálnici Praha-České Budějovice. Tento dům je ideální volbou pro ty, kdo hledají pohodlí, dostatek prostoru a skvělou lokalitu s výbornou dostupností. Pro více informací nebo domluvení prohlídky nás prosím kontaktujte.
Prodej rodinného domu 3+1 v Soběslavi, Chvalovského nábřeží
Prodej rodinného domu s uzavřeným dvorem a hospodářskými stavbami v centru města Soběslavi. Dům je rozdělen na dvě zóny, v levé části je kuchyně a…
Prodej rodinného domu, 270 m2, Soběslav, ul. Na Ohradě
Prodej dvougeneračního rodinného domu, Soběslav - užitná plocha 270 m2, zahrada 548 m2. Nemovitost se nachází v klidné obytné zástavbě s výbornou…