Makléř: Dana Kolářová
Telefon: 725 815 ...
E-mail: dana.ko ...
Zobrazit celý kontaktTelefon: 725 815 831
E-mail: dana.kolarova.sorent@seznam.cz
Nemovitost nabízí
SORENT – CB spol. s r.o.
Lannova tř.14/9, 370 01 České Budějovice
Zobrazit kontakt na RK
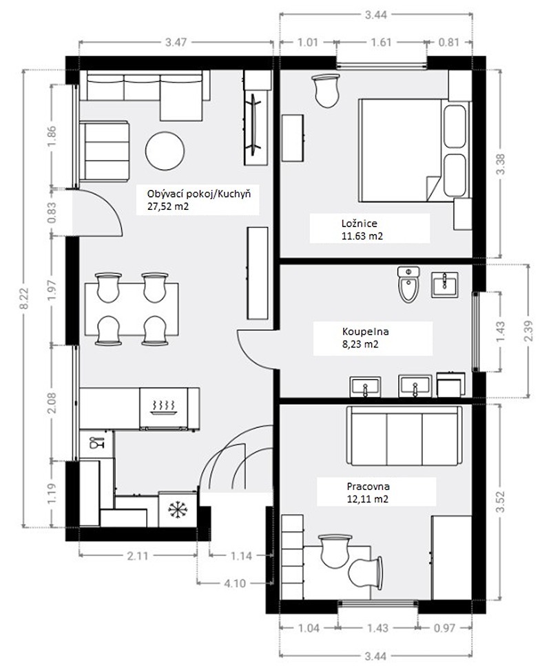
Nabízíme na prodej patrový rodinný dům se dvěma byty o dispozici 3+kk a 2+1, který se nachází na krásném, klidném místě v Rožnově, oblíbené části Českých Budějovic. Dům byl postaven v roce 1975 a po celou dobu ho obývala jedna velká rodina, která se o něj pečlivě starala, a proto je dnes ve velmi dobrém stavu a ihned připravený k bydlení. Celková obytná plocha domu je 124 m2, zastavěná plocha činí 79 m2 a celý pozemek má výměru 545 m2. V 1.NP je bytová jednotka o dispozici 2+1, v 2.NP se nachází byt 3+kk. Oba byty jsou velmi světlé. Každý má vlastní balkon a koupelnu se sprchovým koutem. Dům je celý podsklepený - v suterénu se nachází garáž, kotelna s kamny na tuhá paliva, sklepní prostory a prádelna, kde je umístěn plynový kotel. Na zahradě stojí druhá garáž o velikosti 33 m2, která je rozdělena na část pro parkování a samostatný sklad na zahradní vybavení či sezónní věci. Na garáž navazuje dřevěná pergola s venkovní kuchyňkou, kde se nachází ideální místo pro posezení s přáteli a rodinou. Zahrada je útulná s několika ovocnými stromy, ideální pro odpočinek nebo pěstování květin a zeleniny. Měsíční náklady na provoz domu činí přibližně 6.500 Kč. Některé vybavení domu je možné po dohodě ponechat. Předání domu je naplánované na červenec 2026. Dům se nachází v klidné lokalitě s výbornou dostupností do centra města - autem nebo MHD jste v centru do 10 minut. V blízkosti je veškerá občanská vybavenost - škola, školka, supermarket Billa, obchody i zastávka MHD. Nedaleko protéká řeka Vltava, která dodává místu příjemnou atmosféru a nabízí možnosti pro procházky, cyklovýlety, rybaření a koupání. Tento dům je ideální pro velkou rodinu nebo lze využít pro dvougenerační bydlení či spojení vlastního bydlení s pronájmem. Nabízí dostatek prostoru, soukromí i příjemné zázemí pro celou rodinu. Pokud hledáte klidné místo k životu na kraji města, tento dům může být přesně tím, co hledáte. Nabízíme hypoteční servis zdarma - naši hypoteční poradci řeší úvěry u všech bankovních domů za nejlepších podmínek na trhu.
Prodej, Rodinný dům, České Budějovice
Rodinný dům snů v Rožnovském Předměstí. Hledáte nový domov, kde se kvalita spojuje s komfortem a moderním stylem? Máme pro vás výjimečnou nabídku! …
Prodej rodinného domu v Českých Budějovicích, ul. Ledenická
Nabízíme k prodeji výjimečný dům v Českých Budějovicích, v oblíbené lokalitě České Budějovice 5. Tato cihlová nemovitost stojí na rohovém pozemku o…