Makléř: Jůdová Štěpánka
Telefon: 800 100 ...
E-mail: info@mm ...
Zobrazit celý kontaktTelefon: 800 100 446
E-mail: info@mmreality.cz
Nemovitost nabízí
M&M reality holding a.s.
Krakovská 1675/2, 110 00 Praha 1
Zobrazit kontakt na RK800 100 446
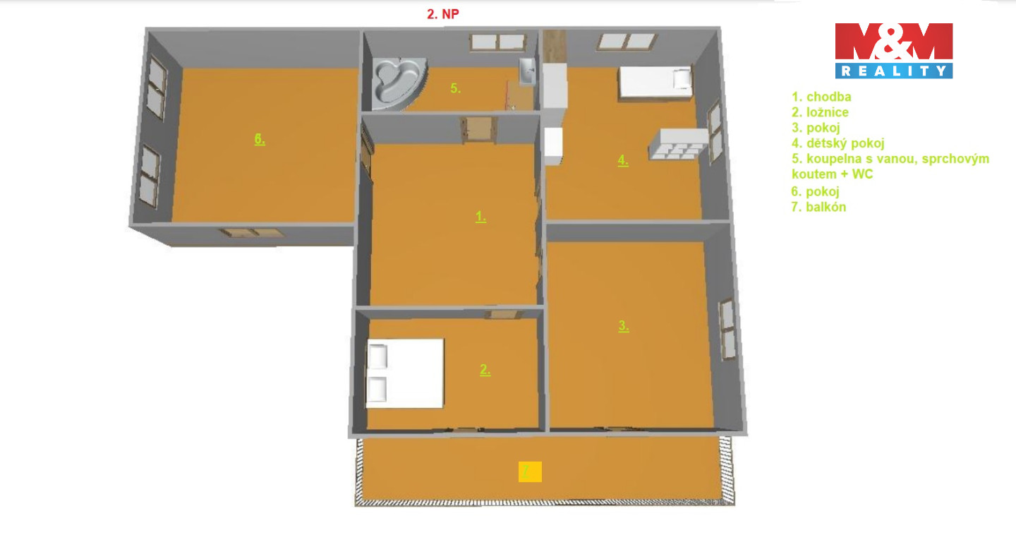
Nabízíme k prodeji výjimečný rodinný dům zkolaudovaný v roce 2012, který se nachází v klidné a vyhledávané části Českých Budějovic - Rožnov, v ulici Holkovská. Dům o dispozici 6+kk je situován na pečlivě udržovaném pozemku o velikosti 1 772 m2 a nabízí ideální zázemí pro rodinu, která hledá prostor, soukromí a pohodlí. Dominantou zahrady je pergola s vířivkou, ideální pro relaxaci či grilování s přáteli. Na pozemku se dále nachází přístřešek na auto, skleník, kůlna a vrtaná studna. Interiér tvoří světlý obývací pokoj s krbem, moderní kuchyně s jídelnou, pět pokojů, dvě koupelny, šatna a technická místnost. O vytápění se stará tepelné čerpadlo v kombinaci s podlahovým topením, přičemž krb rozvádí teplo průduchy do všech pokojů v patře. Dům lze díky promyšlené dispozici snadno upravit na dvě samostatné bytové jednotky, což z něj činí ideální variantu i pro vícegenerační bydlení. Pro více informací a sjednání prohlídky nás neváhejte kontaktovat.
Prodej dvougeneračního domu s investičním potenciálem - Lidická ulice, České Budějovice
Ve výhradním zastoupení majitele nabízíme k prodeji dvoupodlažní podsklepený rodinný dům z roku 1939 na Lidické ulici v Českých Budějovicích. V…
Výstavba zděného RD 4+kk na vašem pozemku, 114 m2, pro lokalitu České Budějovice a okolí
Nabízíme zajištění výstavby zděného domu, bungalovu, en. třídy B, na vašem pozemku pro lokalitu České Budějovice a okolí do cca 20 km. Dům o…