Makléř: Romana Kolářová
Telefon: 777 235 ...
E-mail: romana. ...
Zobrazit celý kontaktTelefon: 777 235 528
E-mail: romana.kolarova@sorent.cz
Nemovitost nabízí
SORENT – CB spol. s r.o.
Lannova tř.14/9, 370 01 České Budějovice
Zobrazit kontakt na RK
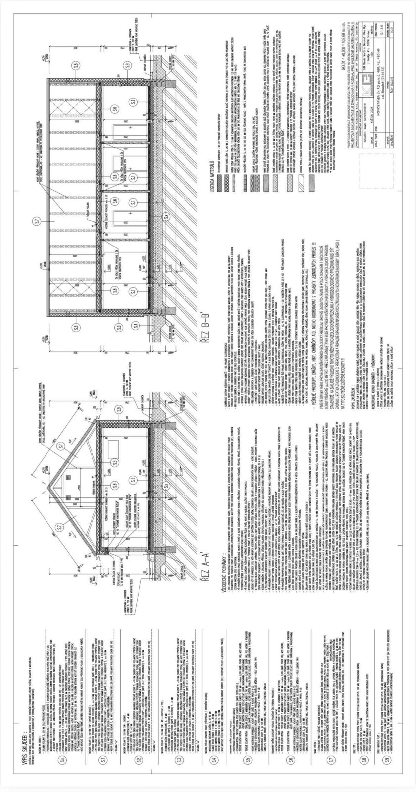
Rezidence „Zlaté Roudné“ - pokračuje výstavba v roce 2026 a prodej rodinných domů. K prodeji přízemní rodinný dům "na klíč". V nabídce volný dům č. 63 na rohovém pozemku, samostatný prostorný dům 4+kk typ "Stodola" s pozemkem o výměře 537 m2/p. č. 480/42 s moderním zpracováním a možností využití podkroví. Zákazník nyní může sám volit konečnou podobu svého domu výběrem dle vlastního přání (podlahových krytin, vnitřních dveří, obkladů, dlažeb a sanity koupelny), standardy předložíme zájemci. “REZIDENCE ZLATÉ ROUDNÉ“ se nachází v obci Roudné v nadmořské výšce 393 m.n.m asi 3 km jižně od Českých Budějovic. Roudné bylo založeno při levém břehu Malše, navazuje na městskou část Rožnov. Vybavenost obce Roudné: mateřská škola, hřiště, restaurace, knihovna, kulturní sál, víceúčelový sál, požární zbrojnice, sběrný dvůr, v obci fungují spolky - SDH Roudné, MS Malše Roudné a sportovní kluby: TJ Malše Roudné - fotbalový klub, Vladykův Dvůr - jezdecký klub. Navazujeme na již několikátý úspěšně realizovaný a velmi žádaný projekt investora, který je jednička ve svém oboru. Obytná plocha domu je 90,05m2. Zastavěná plocha domu 112,50m2 + parkovací stání pro 2 auta cca 36m2+ terasa o výměře 12m2. Dispozice: samostatné WC(2,2m2), tech.místnost(2,4m2), koupelna s WC(7,95m2), obývací pokoj s kuch.koutem (29,45m2), chodba (12,24m2), 3 ložnice (12m2, 10m2, 10m2), šatna (3,8m2)+úložný prostor na půdě (možnost obytné podkroví). Vybavenost domu: Zpevněná plocha - terasa ze zámkové dlažby Best Beleza, vchod a parking ze zámkové dlažby Best Klasik, plot - podhrabový obrubník + 3D drátěné poplastované pletivo (180-200cm), systémová branka cca 1m + 3m brána dvoukřídlá, příprava na venkovní žaluzie (kastlíky), příprava na krbová kamna a klimatizaci, konstrukce Porotherm 240-300 obvod, vnitřní 200, příčky 150, zateplovací systém 180/200mm polystyren, plastová okna a dveře - izolační trojsklo, barva bílá, veškeré vnitřní rozvody - elektřina, plyn, voda, topení, plynový kotel BAXI se zásobníkem vody, v celém domě podlahové vytápění, podlahy vinyl a dlažba, dveře s obložkami, koupelna se sprchovým koutem, vanou, umyvadlem a toaletou, příprava na fotovoltaiku. V ceně není: kuch.linka, svítidla, žaluzie, klimatizace, komín, nábytek, pergola, finální úprava zahrady. Pozemky jsou přístupné po obecní komunikaci, výstavba domů probíhá na zasíťovaném a zkolaudovaném ZTV-plyn, elektřina, vodovod, kanalizace, Starnet - optický kabel. Velký zřetel je kladen na energetickou úspornost domu, aby jeho budoucí majitel měl co nejnižší náklady na provoz domu (PENB-B). Hypoteční servis zdarma (naši hypoteční poradci řeší úvěry u všech bankovních domů za nejlepších podmínek na trhu). Navazujeme na již několikátý úspěšně realizovaný a velmi žádaný projekt investora, který je jednička ve svém oboru. Již 15 let bydlíme v domě, který stavěl tento developer, tak můžeme z vlastní zkušenosti vřele doporučit. Těšíme se na vás při prohlídce v Roudném. Buďte další spokojený soused.
Prodej rodinného domu 5kk s terasou a zahradou v Roudném u Českých Budějovic
Nabízíme vám k prodeji novostavbu rodinného domu 5kk na klíč, který je ve výstavbě a je ve velmi atraktivní lokalitě v Roudném u Českých Budějovic.…
Prodej rodinného domu v Roudném u Českých Budějovic
Prodej rodinného domu v Roudném u Českých Budějovic Nabízíme k prodeji rodinný dům o užitné ploše 177 m2 na pozemku o velikosti 474 m2, který se…