Aktuálně můžete v lokalitě České Budějovice vybírat z nabídky 26 domů.
Přehled nemovitostí: prodej domy > rodinné domy Zpět na přehled nabídek

Prodej rodinného domu 250m2 Veselí nad Lužnicí

1 046 m2

250 m2

osobní

G - Mimořádně nehospodárná

970330

27.03.2026

Cena: 6980000 CZK / objekt
Poznámka k ceně: Cena včetně právního servisu. 1

Poslat dotaz k nabídce
Zásady používání osobních údajů

Prodejce

Makléř: Holub Jan

Telefon: 420 226 ...

E-mail: synergy ...

Zobrazit celý kontakt

Nemovitost nabízí

Century 21 Synergy

Ke Štvanici 656/3, 180 00 Praha 8 - Karlín

Zobrazit kontakt na RK

Zobrazit všechny nabídky RK

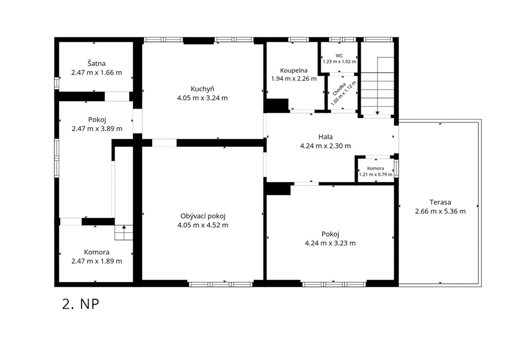
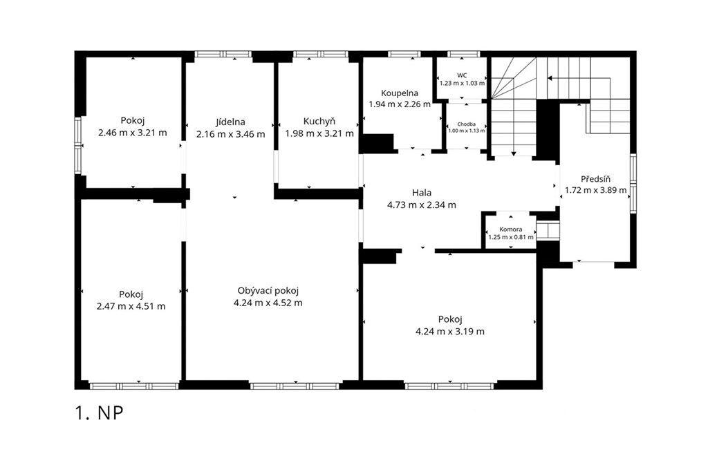
Hledáte prostorný rodinný dům, pro velkou rodinu, kde každý budete mít dostatek soukromí? Právě tento zděný dům v klidné a vyhledávané lokalitě Veselí nad Lužnicí, na adrese Na Strážkách 474 je pro Vás ideální volbou. Dům je řešen jako dvougenerační, takže můžete mít dvě samostatné bytové jednotky, které dokážou uspokojit potřeby Vašeho bydlení. Tento dům má dvě nadzemní podlaží půdu a jedno podzemní podlaží jehož součástí je i garáž. Rodinný dům byl zkolaudován v roce 1976 a v současné době čeká na nového majitele, který se zhostí rekonstrukce dle vlastních představ a potřeb. S celkovou užitnou plochou domu 250 m2 a celkovou plochou pozemku o velikosti 1046 m2 si noví majitelé užijí dostatek prostoru jak uvnitř, tak i vně domu. Umístění domu v krajní části obce uprostřed zástavby rodinných domů mimo hlavní frekventované silnice Vám poskytne celkovou pohodu a klid pro Vaše nové bydlení. Do prvního nadzemního podlaží domu o dispozici 4+1 (86m2) se vstupuje po terasovém schodišti, kde se nachází společná chodba z které pokračuje schodiště do druhého nadzemního podlaží o dispozici 3+1 (81m2) z kterého se vstupuje na terasu (14m2). Vstup na půdu je z bytu v 2NP. Do podsklepené části domu vstupujete vnitřkem domu, garáží případně samostatným vstupem ze zahrady. V rámci přestavby podsklepené části (80m2) je zde možnost vybudování relaxační zóny v podobě sauny, posilovny nebo vinného sklípku. Dům je napojen na veřejný vodovod, kanalizaci, plyn a elektřinu. V současné době vytápění domu zajišťuje plynový stacionální kotel umístěný ve sklepě, ohřev teplé vody zajišťuje plynový kotel stojící hned vedle. Záložním zdrojem vytápění je ještě kotel na pevná paliva. Na rovinatém pozemku se nachází zahradní altán pro posezení a s prostorem pro uskladnění zahradního nářadí. Na zalévání zahrady se využívá voda z kopané studny, kde je osazeno čerpadlo. Pro ty, kteří by chtěli financování nemovitosti prostřednictvím hypotéky, je tato možnost dostupná a rádi Vám ji zprostředkujeme. Vzhledem k lokalitě, velikosti pozemku a stavebním parametrům nemovitosti by tento dům měl zaujmout širokou škálu zájemců, ať už jsou to rodiny s dětmi, páry hledající klid od městského ruchu nebo seniory, kteří si přejí strávit své důchodové roky v poklidném a přátelském prostředí. Pokud hledáte dům, který kombinuje stavební potenciál, velkorysý prostor a skvělou lokalitu, neměli by jste si nechat ujít tuto jedinečnou nabídku v srdci Jihočeského kraje, v obci Veselí nad Lužnicí.



Nahoru