Makléř: Fišer Petr
Telefon: 296 399 ...
E-mail: info@mm ...
Zobrazit celý kontaktTelefon: 296 399 006
E-mail: info@mmreality.cz
Nemovitost nabízí
M&M reality holding a.s.
Krakovská 1675/2, 110 00 Praha 1
Zobrazit kontakt na RK800 100 446
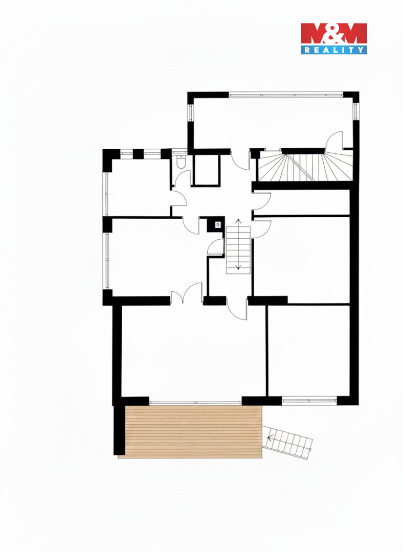
Nabízíme k prodeji unikátní rodinný dům v poklidné části obce Čestice. Tento prostorný objekt se 17 místnostmi a užitnou plochou 258 m2 poskytuje dostatek místa pro každého člena rodiny. Dům se nachází na pozemku o rozloze 660 m2, ideálním pro dětské hry, pěstování biopotravin či letní grilování. Podzemní podlaží nabízí možnost vybudování vinného sklípku, domácího wellness nebo dílny. Nemovitost je situována v klidné části obce s bohatou historií a veškerou občanskou vybaveností v okolí. Stav domu je před rekonstrukcí, což umožňuje přizpůsobit si bydlení podle vlastních představ. Využijte tuto jedinečnou příležitost vytvořit si vysněný domov v malebném Pošumaví, kde se zastavil čas, ale možnosti jsou neomezené.
Prodej rodinného domu, 204 m2, Čestice
Nabízíme k prodeji novostavbu rodinného domu v pasivním standardu v klidné části obce Radešov u Čestic. Dům o 2 nadzemních podlažích a užitné ploše…
Prodej rodinného domu, 80 m2, Doubravice u Volyně
Rodinný dům s obrovským potenciálem pro Vaši realizaci v Doubravici u Volyně! Nabízíme k prodeji rodinný dům (dispozice 3+1 a stodola) o celkové…