Makléř: Lubor Myšák
Telefon: 777 238 ...
E-mail: lubor.m ...
Zobrazit celý kontaktTelefon: 777 238 978
E-mail: lubor.mysak@post.cz
Nemovitost nabízí
Adler reality
Lipenská 869/17, České Budějovice
Zobrazit kontakt na RK
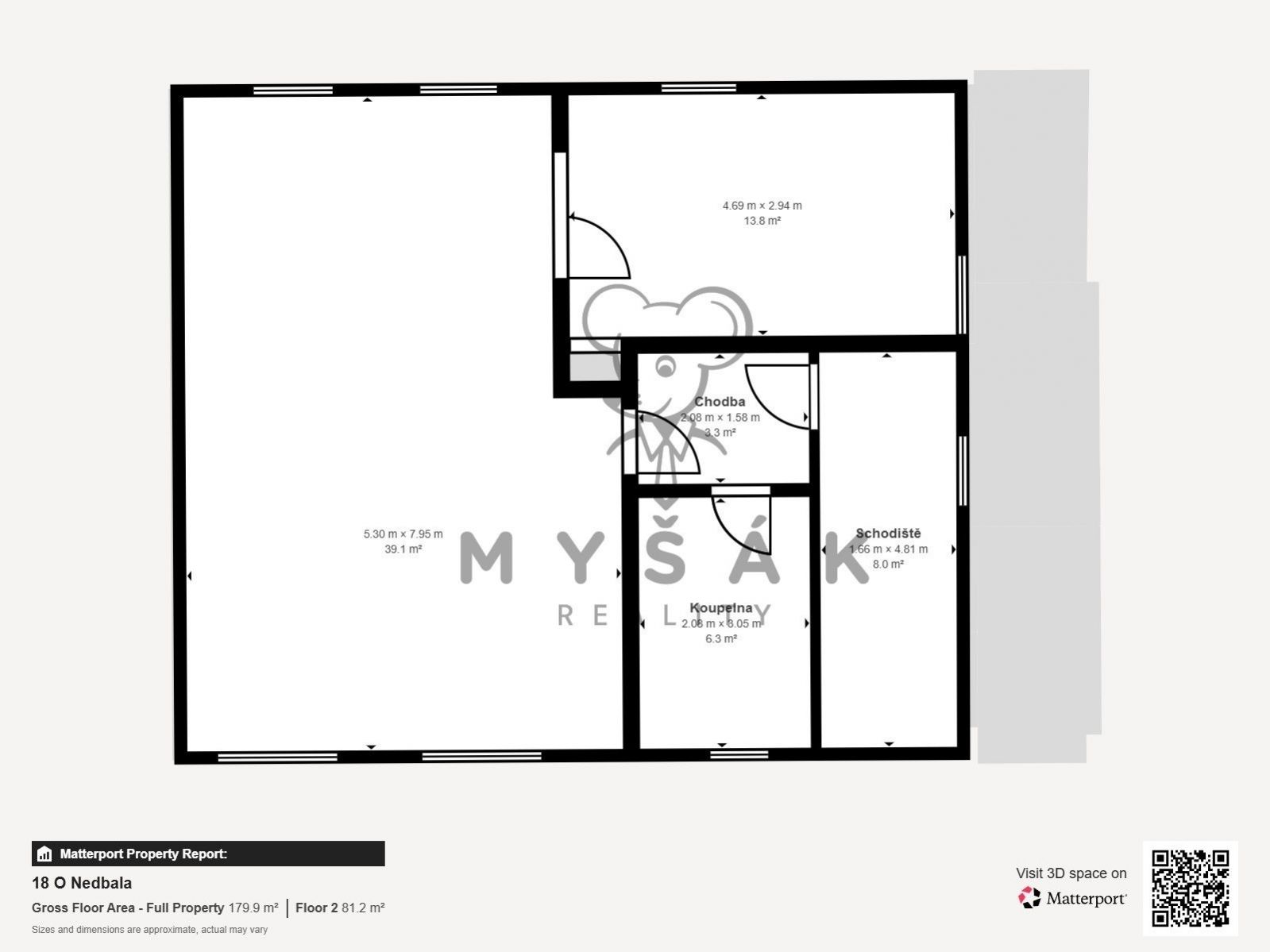
Nabízím vám ke koupi zajímavý soubor nemovitých věcí vhodný jak k vlastnímu podnikatelskému záměru, tak i jako případná investice. Jedná se o dům, který v současné době nabízí kancelářské prostory v přízemí i v patře, které bylo nově vybudováno v roce 2015, s vyřešeným parkováním včetně legálního vjezdu přímo z ulice a před třemi lety nově postavenou garáží o podlahové ploše 80 m2 s navazujícím, zámkovou dlažbou, zadlážděným pozemkem o výměře 100 m2, který je možno rovněž využít k parkování. Přízemí i patro domu fungují odděleně. Každé má vlastní vstup, vlastní kondenzační plynový kotel, klimatizaci - tepelné čerpadlo, podružné měření vody i elektřiny a samostatný plynoměr pro každé z nich. Patro je možné bez dalších úprav využívat jako prostorný byt 2+kk, případně je možné ho snadno adaptovat na 3+kk, na což je vše plně připraveno. Dům je kompletně zateplený a náklady na jeho provoz jsou velmi sympatické. Majitel instaloval kamerový systém a zabezpečovací zařízení napojené na PCO, LED rampy uvnitř i z vnějšku objektu, dvě vjezdové automatické brány, jak na parkoviště vedle domu, tak u vjezdu ke garáži. Za zmínku určitě stojí i to, že parkoviště je obklopeno vzrostlými stromy magnolií a sakur, keři azalek a rododendronů. Jedná se o objekt na frekventovaném místě s různými možnostmi využití - od ordinací přes kanceláře firmy až po kombinaci vlastního bydlení a podnikání pod jednou střechou. V současné době je přízemí pronajato a je zde i výnos z pronájmu reklam umístěných na plotě. Informace o stávajícím i odhadovaném potencionálním výnosu vám rád sdělím po telefonu, případně prostřednictvím e-mailu. Patro zůstává kompletně zařízené tak jak vidíte na fotografiích. Nový majitel obdrží kompletní projektovou dokumentaci k rekonstrukcím i výstavbě garáže. Mezi přiloženými fotografiemi naleznete plánky obou podlaží a objekt si můžete i virtuálně projít. Pokud na tento inzerát narazíte na serveru, který nepodporuje virtuální prohlídky nemovitostí, tak odkaz na ni najdete na mých webových stránkách. Veškeré informace vám rád poskytnutu při osobní prohlídce objektu. <a href="https://www.eurobydleni.cz/komercni-nemovitosti/kancelar/ceske-budejovice/obec-ceske-budejovice/prodej/"><strong>Prodej kanceláře České Budějovice</strong></a>
Výstavba zděného bungalovu 4+1, typ L, en. třída B, zast. plocha 114 m2, pro individuální pozemek.
Nabízíme výstavbu na vašem pozemku. Zastavěná plocha 114 m2 (dále i terasa a parkovací stání, lze i garáž). Vnitřní dispozici domu tvoří hlavní…
Prodej, Rodinný dům, České Budějovice
Prodáme výhradně starší, řadový, patrový rodinný dům, v širším středu Českých Budějovic v klidné ulici Pivovarská. Dům je celý podsklepený a v I.NP a…
Prodej rodinného domu České Budějovice na Eurobydleni.cz