Makléř: Aneta Hanzlíková
Nemovitost nabízí
HANZLÍKOVÁ REALITY s.r.o.
B. Smetany 1652/36, 37001 České Budějovice 3
Zobrazit kontakt na RK
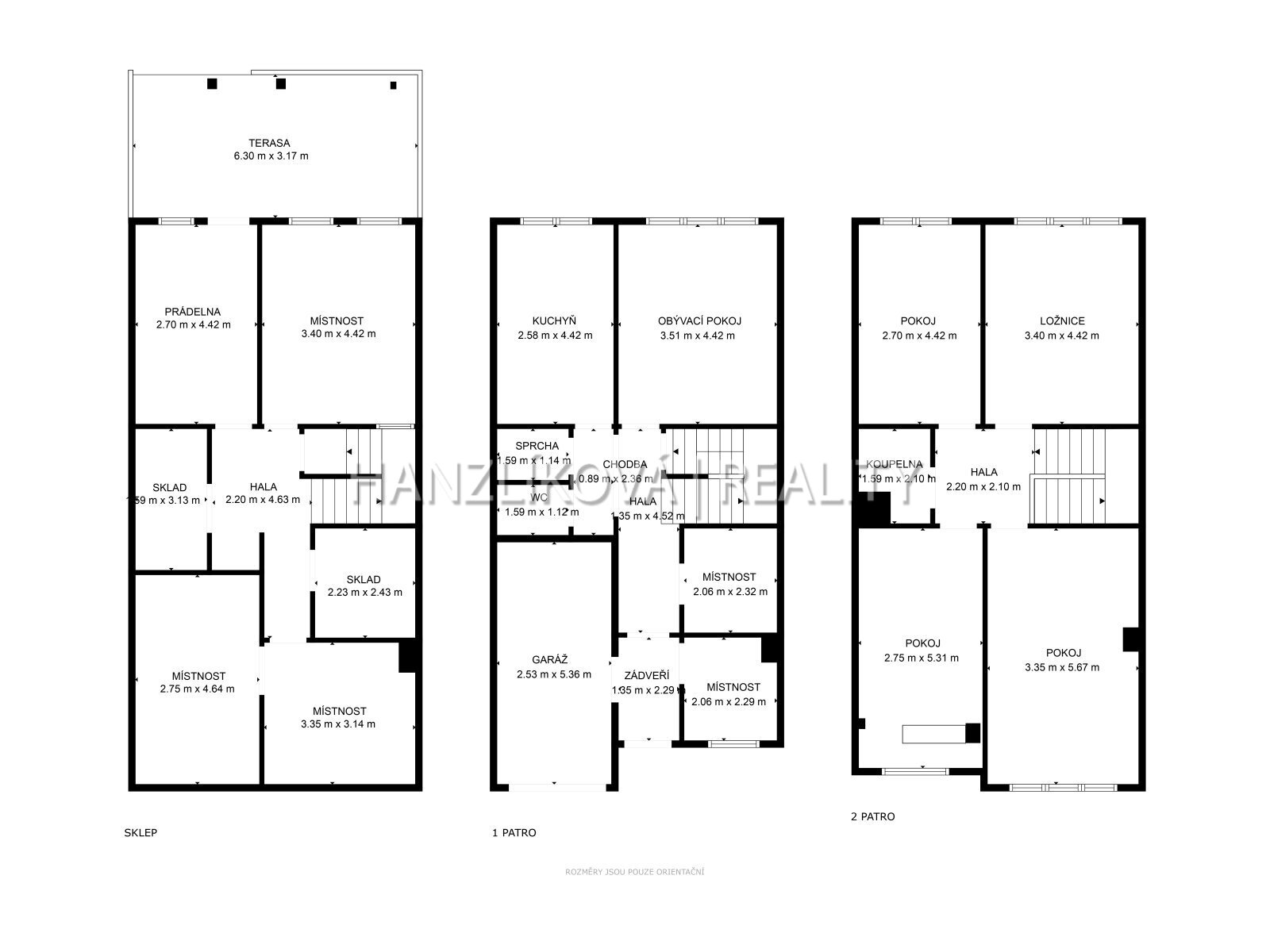
Nabízíme k prodeji řadový rodinný dům v jedné z nejoblíbenějších a klidných částí obce Dobrá Voda u Českých Budějovic, v ulici Hornická. Dům se nachází v stabilizované zástavbě rodinných domů na vyvýšeném místě, které nabízí příjemné bydlení v zeleni, klid a zároveň výbornou dostupnost do centra Českých Budějovic. Dobrá Voda je dlouhodobě vyhledávanou lokalitou díky kombinaci klidu, bezpečí a přírody. V bezprostředním okolí najdete lesy, množství zeleně i známý poutní kostel kostel Panny Marie Bolestné Dobrá Voda. Lokalita nabízí kompletní občanskou vybavenost - v dosahu je škola, školka, obchody, restaurace i zastávka MHD s rychlou dostupností do centra města. Dispozice a stav nemovitosti: Dům byl postaven přibližně v 80. letech a je určen ke kompletní rekonstrukci, což ale přináší velkou výhodu - nový majitel si může vše přizpůsobit přesně podle svých představ. Dispozice: • 1. NP: vstup, pokoj/pracovna, koupelna, kuchyně, obývací pokoj • 2. NP: 4 samostatné pokoje, původně lodžie (dnes součást interiéru - možnost obnovení) • suterén: kompletní podsklepení domu (velký benefit oproti běžným řadovkám) • garáž přímo v domě Dům je napojen na veškeré inženýrské sítě. Potenciál, který se dnes hledá těžko. Nemovitost nabízí široké možnosti využití: • komfortní rodinné bydlení po rekonstrukci • dvougenerační dům (možnost rozdělení na dvě jednotky) • kombinace bydlení a podnikání • investiční příležitost Díky dispozici a podsklepení lze dům velmi variabilně upravit. Shrnutí: • klidná a bezpečná lokalita na Dobré Vodě • zástavba rodinných domů, zeleň, lesy v okolí • kompletní občanská vybavenost • garáž + podsklepení (výjimečné u řadových domů) • velký potenciál rekonstrukce dle vlastních představ Pokud hledáte dům v lokalitě, kde se dobře bydlí a zároveň chcete vytvořit bydlení přesně podle sebe, tahle nabídka dává smysl.
Designový rodinný dům s velkou zahradou a minimalistickým interiérem - Dobrá Voda u Českých Budějovic
Nabízíme k prodeji jedinečný rodinný dům v klidné lokalitě Dobrá Voda u Českých Budějovic, ideální pro ty, kteří hledají nadčasovou architekturu,…
Řadový dům na Dobré Vodě u Českých Budějovic
Důvodem proč si koupit tenhle starší dům je zdejší klid. Dům je ve slepé ulici, kolem je jen klidná obytná čtvrť. Na Dobré Vodě je konečná autobusu,…